coup de coeur bien vendu

Description

À Reyrieux, à 10 minutes à pied des commerces, écoles, collège et arrêt de car : Venez découvrir cette maison lumineuse et peu énergivore de 88 m² habitables + garage de 16 m² construite en 2017 (RT 2012) sur une parcelle de 434 m².

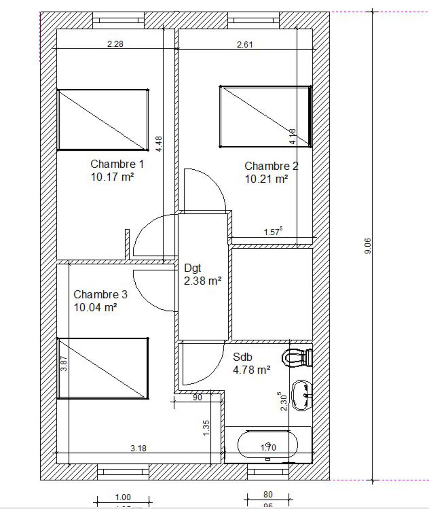
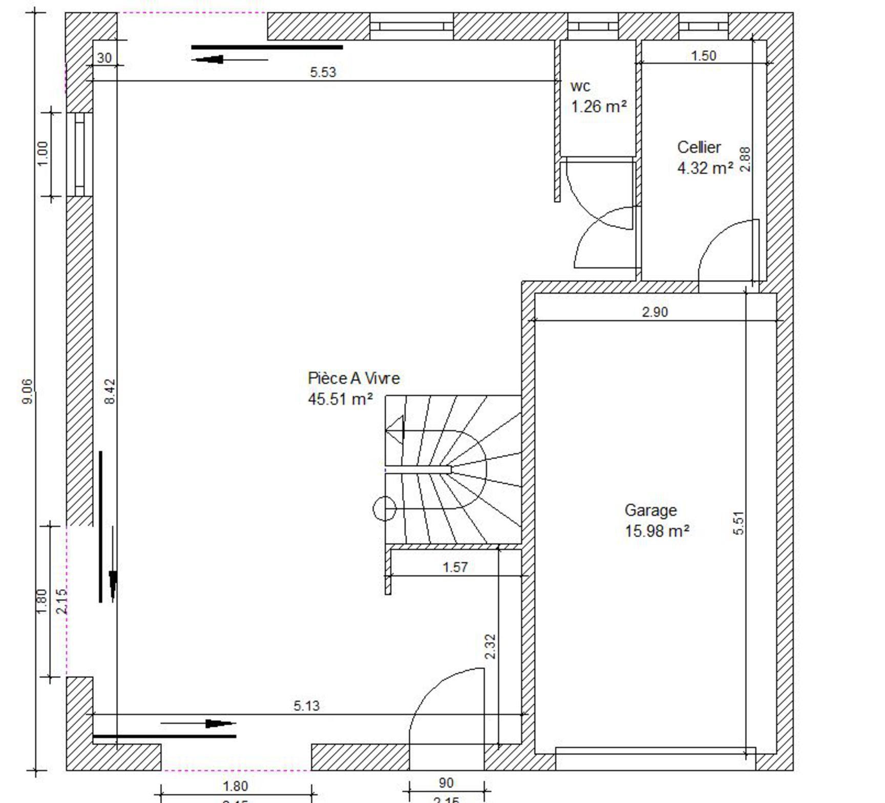
Elle se compose d’une entrée avec rangements ouvrant sur un salon / salle à manger avec cuisine ouverte équipée et aménagée de 45,51 m² offrant un accès au jardin, un cellier / buanderie et un wc. À l’étage : 3 chambres de plus de 10 m² et une salle de bain. Chauffage / climatisation par air pulsé et chauffage au gaz de ville par radiateurs. 1 garage et 3 places de stationnement complètent ce bien situé hors lotissement ! Pour visiter : Karine Fontaine à votre écoute au 06 73 08 09 15. Vous pouvez contacter Karine FONTAINE 06 73 08 09 15 karine.fontaine@rhone-saone-immo.com.


Caractéristiques

Général
  • Surface habitable : 88 m2
  • Surface terrain : 434 m2
  • Année de construction : 2017
  • Localisation : Reyrieux (01600)
  • Exposition : EO
Nombre Surface Commentaire
Pièces (total) 4 88 m2 -
Chambre(s) - - -
S. de Bain 1 - -
W-C 1 - -
Garage 1 - -

Performances énergétiques

Chauffage
  • individuel Radiateur Gaz

Logement économe Logement
  • ≥ 50 A
  • 51 à 90 B
  • 91 à 150 C
    C
  • 151 à 230 D
  • 231 à 330 E
  • 331 à 450 F
  • > 450 G
Logement énergivore
Faible émission de GES Logement
  • ≥ 5 A
  • 6 à 10 B
  • 11 à 20 C
    C
  • 21 à 35 D
  • 36 à 55 E
  • 56 à 80 F
  • > 80 G
Forte émission de GES

Localisation

Contact :

Karine FONTAINE

Tél. 06 73 08 09 15

Cette offre vous intéresse ?
Contactez notre agent