coup de coeur exclusif sous compromis

Description

EXCLUSIVITÉ : Décines Centre, venez découvrir cet appartement idéalement bien situé qui se trouve à deux pas du Parc Maurice Sauthier et de l'arrêt du Tram qui vous permettra de rejoindre Lyon en 30 min.

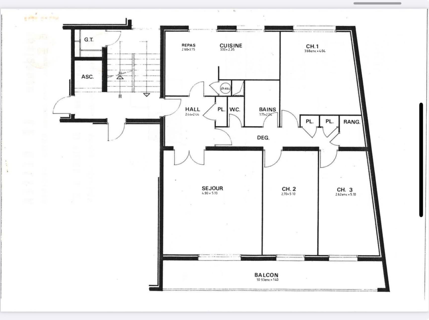
Traversant, très fonctionnel, sans vis à vis et lumineux, ce grand T4 de 103,64 m² se situe dans une petite copropriété recherchée et sécurisée de 3 étages. Il se compose d’un Hall, d’un séjour de 25 m² ouvrant sur une loggia fermée de 16 m² exposée sud qui fait office de jardin d’hiver, d’une spacieuse cuisine dinatoire meublée indépendante, d’un espace nuit dans lequel se situe, 3 belles chambres (13,77; 13,99 et 15,44 m² ), d’un dressing, de rangements, d’une SDB et d’un toilette séparé. Le séjour et deux chambres donnent sur la loggia. Sont inclus dans le lot, une cave, un garage et une place de parking privative. Prévoir travaux de rafraichissement. Petite copropriété comprenant 11 lots, les charges annuelles s’élèvent à 1822 € / An. Pas de procédures en cours. Pour plus de renseignements : Hélène HERBEPIN au O6.64. 72.65. 12 Vous pouvez contacter Hélène HERBEPIN 06 64 72 65 12 helene.herbepin@rhone-saone-immo.com.


Caractéristiques

Général
  • Surface habitable : 103 m2
  • Année de construction : 1982
  • Localisation : Décines-Charpieu (69150)
  • Exposition : NS
  • Étage : 2eme
Aspect financier
  • Prix : 250 000 € F.A.I (*)
  • Taxe foncière : 1 500 €
Nombre Surface Commentaire
Pièces (total) 4 103 m2 -
Cuisine - 15 m2 Cuisine indépendante meublée de marque SIEMATIQUE
Chambre(s) 3 13 m2 / 13 m2 / 15 m2 espace nuit : la 1 et la 2 donnent sur 1 balcon filant fermé par des baies. la 3 donne sur le parking. Moquette dans toutes les chambres. Pas de placards dans les chambres mais présence de 2 placard dans le couloir et présence d'un espace...
S. de Bain - - SDB : 3,83 m² WC : 1,15 m² présence d'un lave mains.
W-C 1 - -
Garage - - Lot 29 box fermé

Performances énergétiques

Chauffage
  • individuel Radiateur Electrique

Logement économe Logement
  • ≥ 50 A
  • 51 à 90 B
  • 91 à 150 C
  • 151 à 230 D
    D
  • 231 à 330 E
  • 331 à 450 F
  • > 450 G
Logement énergivore
Faible émission de GES Logement
  • ≥ 5 A
  • 6 à 10 B
  • 11 à 20 C
    C
  • 21 à 35 D
  • 36 à 55 E
  • 56 à 80 F
  • > 80 G
Forte émission de GES

Localisation

Contact :

Hélène HERBEPIN

Tél. 06 64 72 65 12

Cette offre vous intéresse ?
Contactez notre agent